لا يتوقف عمل شركة Philips على تصميم معدات لمساعدة عملائها على تقديم أفضل أداء، بل هي أيضًا تعلب دورًا أساسيًا في مجال تصميم مواقع العمل وتجهيزها لتتناسب واحتياجات عملائها. من هنا، تم تصميم مخططات الغرفة المفضلة والتفاعلية من Philips لمساعدة المعماريين والمهندسين والمقاولين، إلى جانب العاملين في المنشأة، على فهم الانعكاسات الأساسية المترتبة على تركيب نظام التصوير الطبي من Philips.
ستتمكن هنا من الوصول إلى مخططات الغرفة القابلة للتنزيل بتنسيق pdf، وبتنسيق DWG وIRL وPDF متى توفر.
تجدر الإشارة إلى أن الملفات القابلة للتنزيل في هذا القسم، على الرغم من فائدتها الكبيرة، ليست خاصة بموقع بعينه أو لا تتناسب وأغراض تقديم العروض.

ستوفر حزم الرسومات التي نقدمها نظرة على:
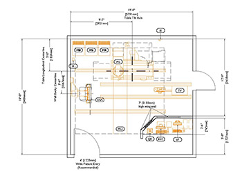
في بعض الحالات، قد لا تكون على علم بمعدات التصوير الطبي التي تسعى مؤسستك إلى تركيبها. من هنا، تسمح لك مخططات الغرفة التفاعلية (IRL) ثلاثية الأبعاد بإلقاء نظرة على المعدات كما تبدو في مخطط الغرفة القياسي.
يتضمن كل مخطط غرفة تفاعلي:
ملاحظة: قد يستغرق تنزيل تلك الملفات عدة دقائق نظرًا لأحجامها الكبيرة.

You are about to visit a Philips global content page
Continue